1. TOP
  2. 間取り・プラン集
  3. 家は、家族と一緒に成長する。 「変えられる」という、最強の安心を。

Plan

間取り・プラン集

NEW

家は、家族と一緒に成長する。 「変えられる」という、最強の安心を。

#2階建て#30坪台#~3LDK#~3000万円
家は、家族と一緒に成長する。 「変えられる」という、最強の安心を。

家は、家族と一緒に成長する。 「変えられる」という、最強の安心を。

新築時の「最高」が、20年後の「最適」とは限りません。
お子様の成長、独立、そしてご夫婦二人のセカンドライフ…。ライフステージの変化に合わせて、家も姿を変えられるべきだと私たちは考えます。

このプランの最大の特徴は、家を支える「構造(スケルトン)」と、内装や設備などの「内装(インフィル)」を明確に分離した設計にあります。
SE構法の強固な外枠だけで建物を支えているため、室内の壁は自由に移動・撤去が可能です。

今は広々としたプレイルームを、将来は2つの子供部屋に。子供たちが巣立った後は、再び壁を取り払って趣味の大空間へ。
建て替えることなく、間取りを自由に編集できる。それは、住み継ぐほどに価値が高まる、次世代のスタンダードです。

Details

家族構成 -
延床面積 -
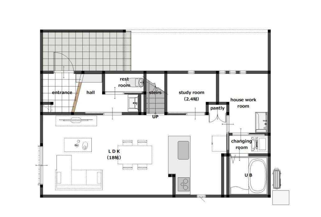
間取り 3LDK
建物価格 2,264万円(税込)
家づくりについてのお問い合わせはこちら

家づくりについてのお問い合わせはこちら

各ご家庭によって生活スタイルは様々です。
今の住まいのお悩み、これからの暮らしのイメージを私たちにお伝えください。
お客様に合わせた最適解を建築のプロがご提案いたします。