1. TOP
  2. 間取り・プラン集
  3. 快適の数値化(C値0.5 / UA値0.48) 「性能」と「自由」を両立した、一つの正解。

Plan

間取り・プラン集

NEW

快適の数値化(C値0.5 / UA値0.48) 「性能」と「自由」を両立した、一つの正解。

#2階建て#30坪台#4LDK#~3000万円
快適の数値化(C値0.5 / UA値0.48) 「性能」と「自由」を両立した、一つの正解。

快適の数値化(C値0.5 / UA値0.48)「性能」と「自由」を両立した、一つの正解。

「開放的な家は寒い」そんなイメージをお持ちではありませんか?
このプランが証明するのは、圧倒的な開放感と、北海道基準にも迫る断熱性能(UA値0.48 W/㎡・K)の両立です。さらに、熟練の施工技術が求められる気密性能(C値0.5㎠/㎡)もクリア。SE構法だからこそ、大開口を設けながらも、魔法瓶のような快適さを実現しました。

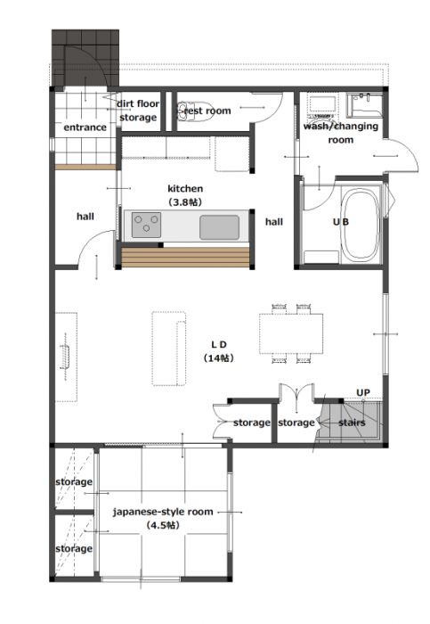
1階は、LDKと和室が一体となった大空間。仕切りをなくしても室温が均一に保たれるため、和室はお子様のお昼寝スペースとしても、客間としてもフレキシブルに活躍します。
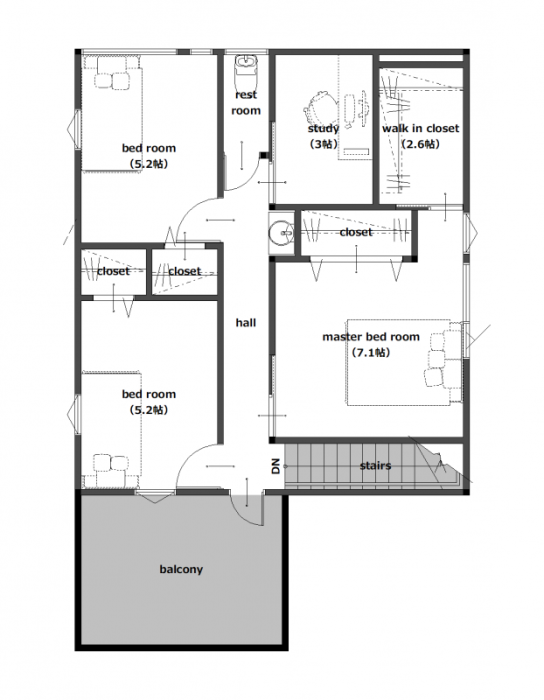
2階には、主寝室と子供部屋に加え、リモートワークに最適な「書斎」と大容量の「WIC」を配置。

強い構造躯体が可能にする自由な間取りと、数値に裏付けされた確かな快適性。
デザイン、性能、そして暮らしやすさ。全てを諦めたくない方のための、自信のプランです。

Details

家族構成 -
延床面積 -
間取り 4LDK
建物価格 2,416万円(税込)
家づくりについてのお問い合わせはこちら

家づくりについてのお問い合わせはこちら

各ご家庭によって生活スタイルは様々です。
今の住まいのお悩み、これからの暮らしのイメージを私たちにお伝えください。
お客様に合わせた最適解を建築のプロがご提案いたします。