1. TOP
  2. 間取り・プラン集
  3. デザインと性能が融合した、賢い家づくりの選択肢。

Plan

間取り・プラン集

NEW

デザインと性能が融合した、賢い家づくりの選択肢。

#2階建て#30坪台#~3LDK#~3000万円
デザインと性能が融合した、賢い家づくりの選択肢。

デザインと性能が融合した、賢い家づくりの選択肢。

北欧の暮らしが豊かなのは、厳しい冬でも家の中が圧倒的に暖かいから。 この「Waffele(ワッフル)」プランは、その北欧思想を日本の技術で完璧に再現しました。
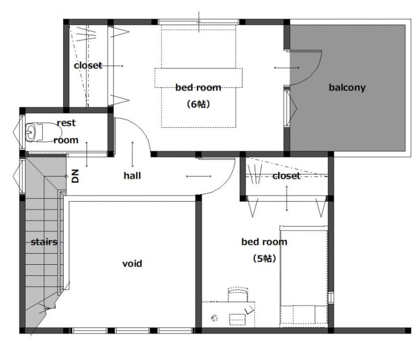
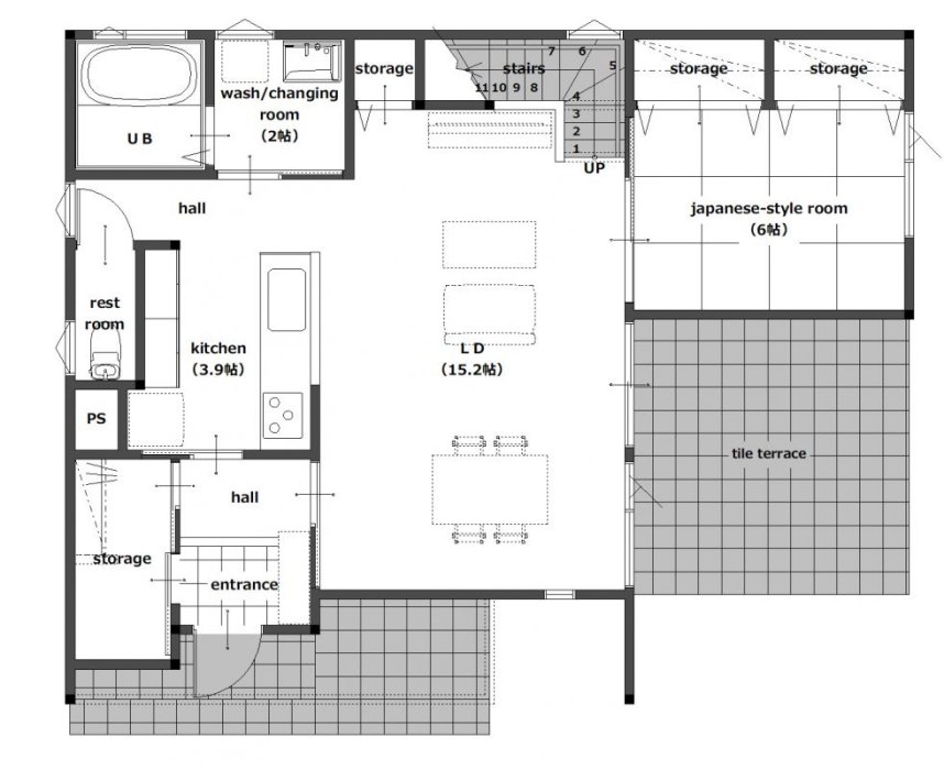
特筆すべきは、国内最高峰レベルの断熱性能(UA値0.46)と気密性能(C値0.2)。 SE構法の強靭な骨組みが可能にする、1階LDKと和室がシームレスに繋がる大空間。この広さであっても、魔法瓶のような保温性能により、エアコン1台で家の隅々まで春のような暖かさに包まれます。
2階は将来の間取り変更も見据えたシンプルな構成で、無駄を削ぎ落とした美しさを追求。 「デザイン」「性能」「構造」。その全てにおいて妥協しない、まさに「家の正解」と言える一棟です。

Details

家族構成 -
延床面積 -
間取り 3LDK
建物価格 1,956万円(税込)
家づくりについてのお問い合わせはこちら

家づくりについてのお問い合わせはこちら

各ご家庭によって生活スタイルは様々です。
今の住まいのお悩み、これからの暮らしのイメージを私たちにお伝えください。
お客様に合わせた最適解を建築のプロがご提案いたします。