1. TOP
  2. 間取り・プラン集
  3. 「干す・畳む・しまう」が2階で完結。自由な発想が生んだ、共働き家族のための最適解。

Plan

間取り・プラン集

NEW

「干す・畳む・しまう」が2階で完結。自由な発想が生んだ、共働き家族のための最適解。

#2階建て#30坪台#4LDK#~3000万円
「干す・畳む・しまう」が2階で完結。自由な発想が生んだ、共働き家族のための最適解。

「干す・畳む・しまう」が2階で完結。自由な発想が生んだ、共働き家族のための最適解。

シンプルでスタイリッシュな外観の中に隠された、驚きの機能性。 この「FUN mode 24」は、忙しい現代の共働きご家族のために設計された一つの答えです。
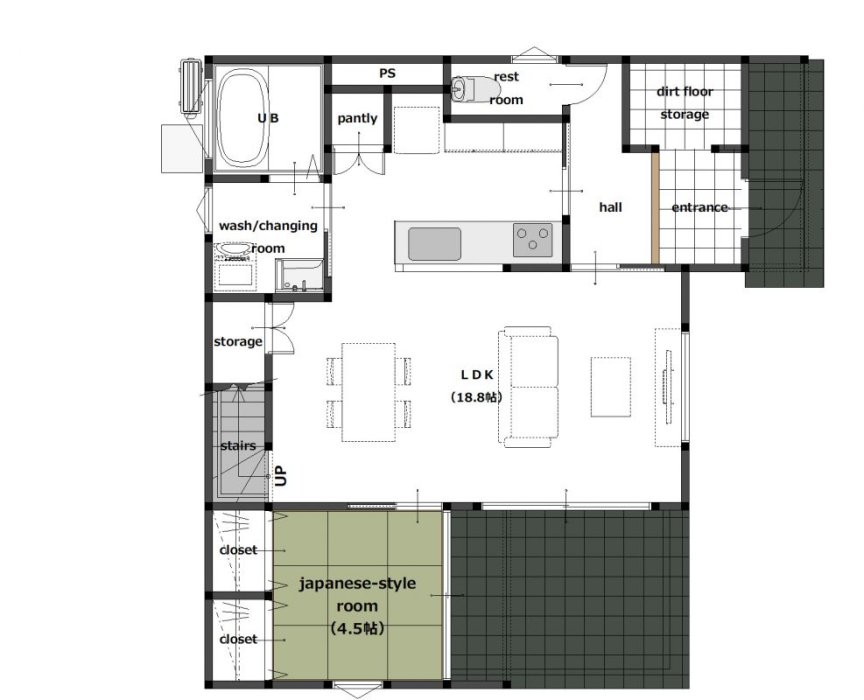
特筆すべきは、2階に配置された「ランドリールーム」。 本来、2階に水回りを配置することは構造的な制約を受けやすいものですが、自由度の高いSE構法ならば、家事動線を最優先した大胆なレイアウトも思いのままです。重たい洗濯物を持って階段を往復する必要は、もうありません。
さらに、C値0.4・UA値0.47という最高レベルの性能値が、家中どこにいても変わらない温度環境を約束します。 デザイン性、家事効率、そして圧倒的な快適さ。 家族の時間を何よりも大切にしたい方に贈る、賢い選択です。

Details

家族構成 -
延床面積 -
間取り 4LDK
建物価格 2,730万円(税込)
家づくりについてのお問い合わせはこちら

家づくりについてのお問い合わせはこちら

各ご家庭によって生活スタイルは様々です。
今の住まいのお悩み、これからの暮らしのイメージを私たちにお伝えください。
お客様に合わせた最適解を建築のプロがご提案いたします。