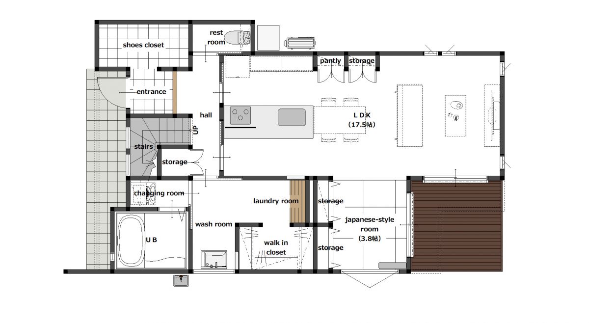
一覧 < 次へ 前へ > Waffele 05 価格2,116万円(税抜) C値0.5㎠/㎡ UA値0.48W/㎡・K 平面図 1F LDK+水回り+和室+土間収納 2F 主寝室+洋室×2+WIC 一覧 < 次へ 前へ > その他のBase Planはこちら Waffele 01 1,716万円(税抜) Waffele 02 1,871万円(税抜) Waffele 03 1,864万円(税抜) Waffele 04 2,048万円(税抜) Waffele 05 2,116万円(税抜) Waffele 06 2,077万円(税抜) Waffele 07 2,333万円(税抜) Waffele 08 2,407万円(税抜)